Zone de navigation principale du site Internet Zone du contenu principal du site Internet
Rubriques
Le mot du maire
Pourquoi un blog ?
De plus en plus de ménages utilisent l'informatique. Certes, tout le monde n'a pas un ordinateur à disposition. Toutefois, c'est le moyen le plus rapide pour correspondre, pour communiquer, pour adresser des photos, pour faire savoir. Aujourd'hui, de nombreuses collectivités mettent Internet à disposition de leurs administrés qui n'ont pas d'ordinateur ou qui n'ont pas l'ADSL. Je souhaite et j'espère que ce blog vous intéressera. Des dernières nouvelles à l'histoire de la commune et de la communauté de communes, il est conçu pour vous et n'a aucun but électoral.
Bonne lecture.

Mandat de Guy BRANCHUT Délibérations 2006

Le 23 janvier 2006 :

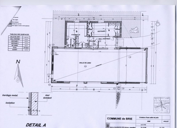
Dépôt de permis pour la construction d'une salle de Judo :
 
La transformation des anciens locaux des services techniques, situés près du cimetière, sont transformables en salle de Judo.
A cet effet, une demande de permis de construire doit être déposée.
Le Conseil, à l'unanimité, décide de déposer un permis de construire.
Image de Mandat de Guy BRANCHUT Délibérations 2006
Plan du Permis de Construire du DOJO (Archives Mairie)
Plan du Permis de Construire du DOJO (Archives Mairie)
Image de Mandat de Guy BRANCHUT Délibérations 2006
Le Bus de Brie transformé en cabinet dentaire (Ph. de l'Association envoyée l'année suivante)
Le Bus de Brie transformé en cabinet dentaire (Ph. de l'Association envoyée l'année suivante)
Cession du bus scolaire Renault :
 
La Commune a fait l'acquisition d'un nouveau bus pour le transport scolaire en août 2005.
L'ancien bus n'a plus lieu d'être gardé.
Une Association a but humanitaire est intéressée pour le récupérer afin d'en faire un cabinet dentaire itinérant en GUINEE.
Le Conseil, à l'unanimité, décide de céder le bus à titre gratuit à l'association et précise qu'il est cédé en l'état et qu'aucune garantie n'est faite.
Image de Mandat de Guy BRANCHUT Délibérations 2006
Une partie de l'intérieur du bus transformé en cabinet dentaire (Ph. de l'Association)
Une partie de l'intérieur du bus transformé en cabinet dentaire (Ph. de l'Association)
Image de Mandat de Guy BRANCHUT Délibérations 2006
Michel BUISSON
Michel BUISSON
Désignation de délégués à la CdC Braconne et Charente suite à la modification des statuts :
 
Suite à la modification des statuts de la CdC, le nombre de délégués évolu.
Brie est désormais représentée par 6 titulaires et 2 suppléants.
Actuellement, sont délégués titulaires : Guy BRANCHUT, Daniel BRANCHUT, Jean-Pierre GUILLOU, Max MACCARI et Christophe RAMBLIERE.  sont suppléants : Michel BUISSON et Daniel BOUCHERIT.
A l'unanimité, le Conseil désigne Michel BUISSON titulaire et Bruno SAUVAGET suppléant.
Image de Mandat de Guy BRANCHUT Délibérations 2006
Bruno SAUVAGET
Bruno SAUVAGET

Pour lire la suite des délibérations de 2006, cliquer sur :

Plan du site | Mentions légales | Contact
agence web